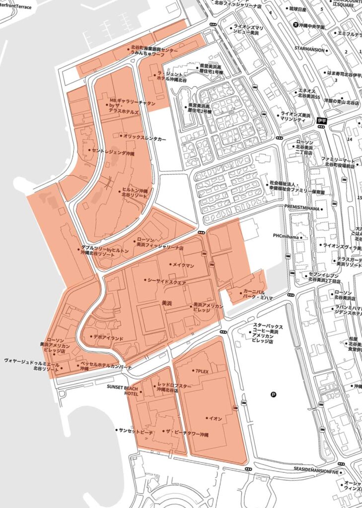
ハロウィンにおける人出の集中に伴う雑踏事故等の防止を目的とし、利用者の安全確保および地域住民・店舗の安心な環境を維持するため、美浜駐車場の早期閉門を実施します。
北側入口、東側入口、西側入口、東側出口について、午後8時閉門
それに伴い、**施設駐車場も「午後8時以降は新たな駐車ができません」**のでご注意ください。
なお、午後8時前に駐車された車両については、午後8時以降も西側出口より出庫は可能です。
ハロウィン交通規制について(10月31日)
10月31日(金)午後8時からアメリカンビレッジ周辺について、一時的に交通規制をおこないます。
○ マイカーおよびオートバイは、規制区域への進入ができません。(バス・タクシー・レンタカーを除く)
○ 規制時間や場所は、交通状況等により変更になる場合があります。
○ 現場の警察官の指示に従っていただきますよう、ご理解・ご協力をお願いします。
アメリカンビレッジ周辺への車両は、タクシーとレンタカーのみ交通可能とします。
ハロウィンにおける人出の集中に伴う雑踏事故等の防止を目的とし、利用者の安全確保および地域住民・店舗の安心な環境を維持するため、美浜駐車場の早期閉門を実施します。
北側入口、東側入口、西側入口、東側出口について、午後8時閉門
それに伴い、**施設駐車場も「午後8時以降は新たな駐車ができません」**のでご注意ください。
なお、午後8時前に駐車された車両については、午後8時以降も西側出口より出庫は可能です。
ハロウィン当日夜間、青少年の深夜徘徊について、指導・取り締まりが強化されます。
2023-01-19
2024-06-13
2024-11-21
Home | プライバシーポリシー | サイトポリシー | お問い合わせ | 観光協会について